Ga naar inhoud

Nobelstraat 5

6902 PH Zevenaar

Eggink Maalderink Garantiemakelaars
Neem contact met mij op

Verkocht

Prijs op aanvraag

  1. Home>
  2. Bedrijfspanden>
  3. Koop Zevenaar Nobelstraat 5

Te koop beleggings-investeringsobject op goede locatie op het bedrijventerrein “Tatelaar” te Zevenaar. Uitstekende propositie welke naar eigen keus en wens is te exploiteren voor verhuur of eigen gebruik.

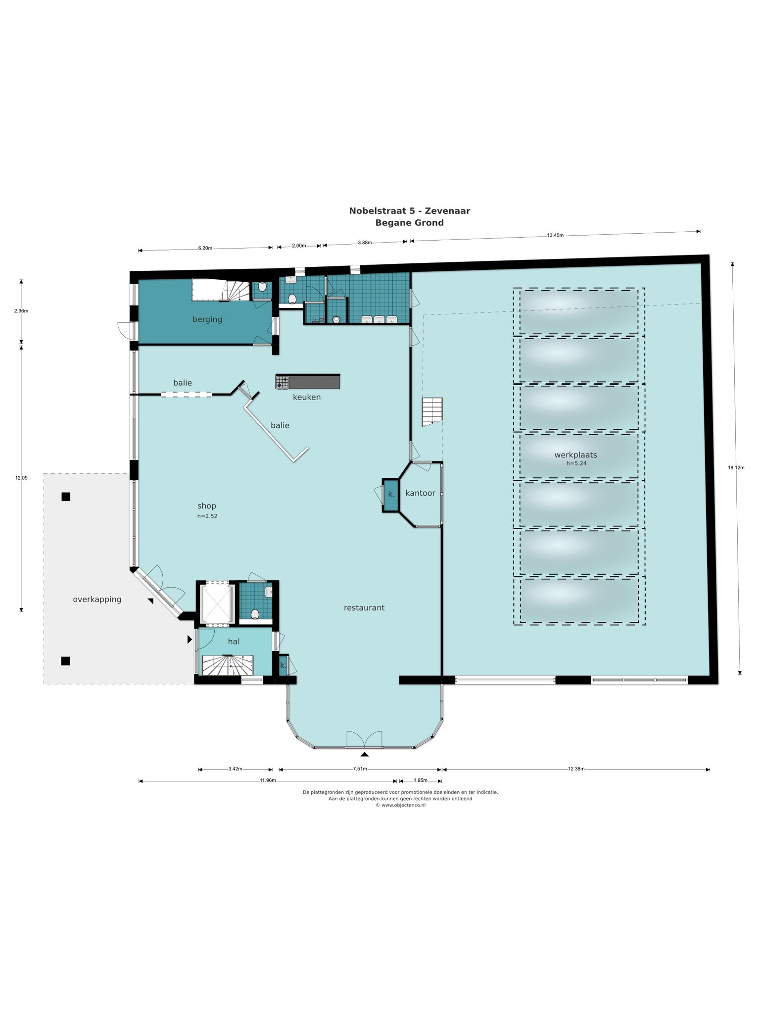
– Verkooppunt met motorbrandstoffen
– Shop en restaurant met souterrain
– Royale bedrijfswoning op de 1e verdieping
– Casco bedrijfsruimte op de 2e verdieping
– Werkplaats met kantoor en wasruimte
– 2 wasboxen met wasinstallatie in souterrain

Metrages:
– Verkooppunt motorbrandstoffen met 4 afleverpunten
– Wasboxen 2 stuks
– Shop en restaurant ca. 200 m² v.v.o.
– Werkplaats ca. 242 m² v.v.o.
– Bedrijfswoning 1e verdieping ca. 159 m² v.v.o.
– Kantoor/kantine t.b.v. werkplaats ca. 21 m² v.v.o.
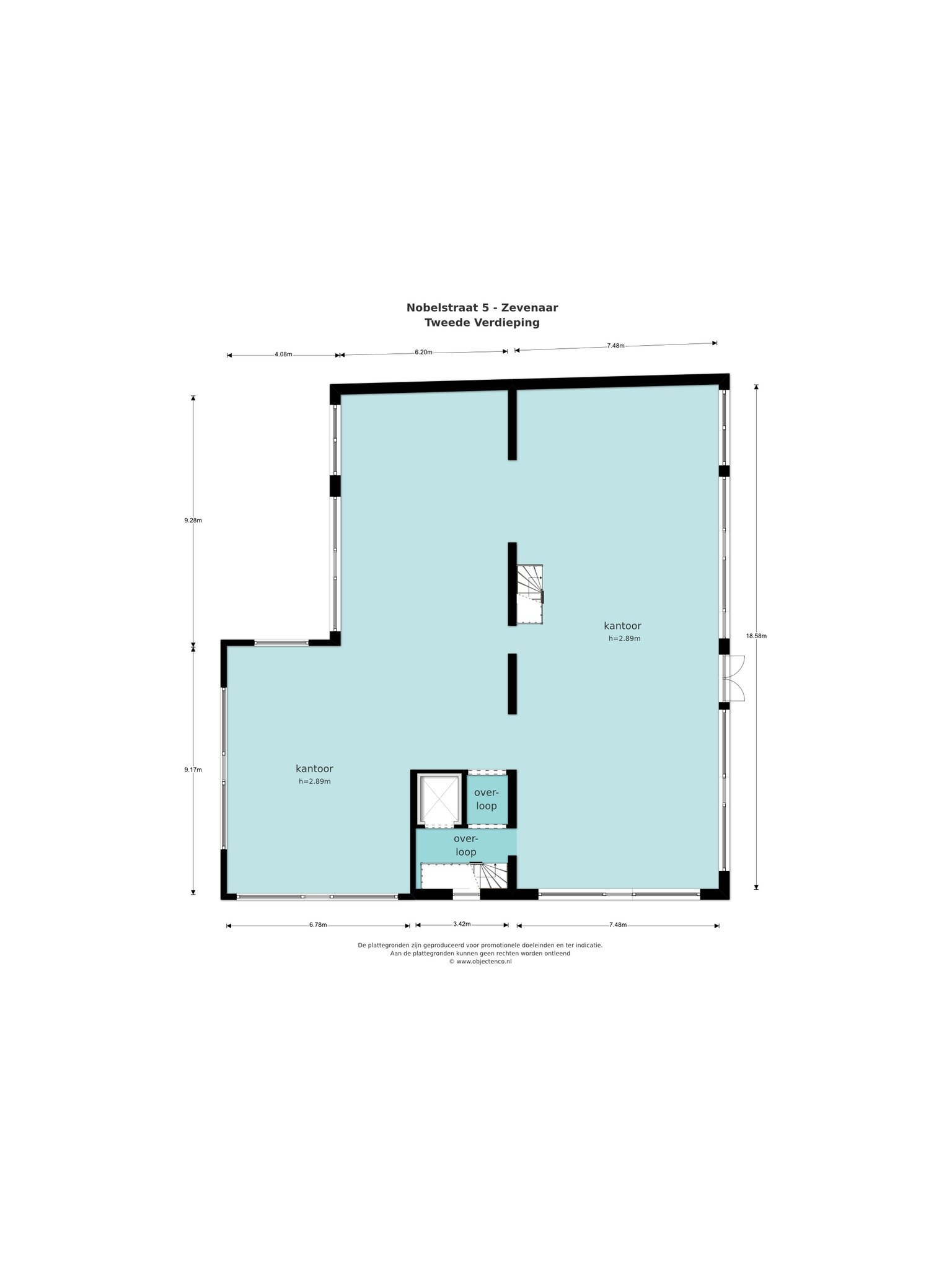
– Bedrijfsruimte 2e verdieping ca. 279 m² v.v.o.
– Souterrain/magazijn ca. 239 m² v.v.o.

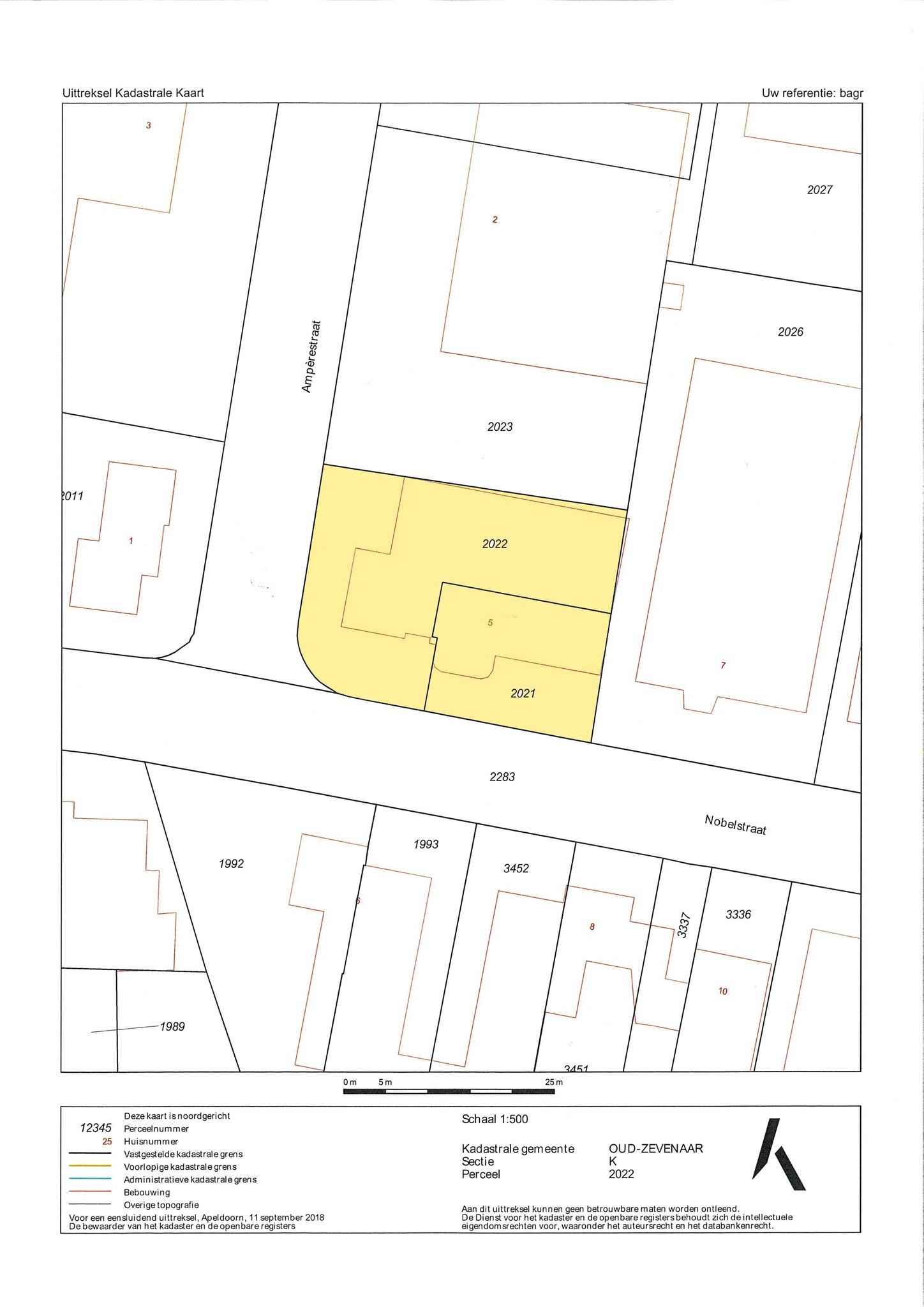
Totale perceelgrootte: 987 m²

Voorzieningen:
Werkplaats:
– Voorzien van vloeistofdichte vloer
– Verwarming d.m.v. heater
– 4-koloms hefbrug en 3 stempelhefbruggen waarvan 1 een wielvrij systeem
– Remteststraat met rollerbank en schokdemperbank
– Nieuwe lichtstraat (2018)
– Elektrische overheaddeur
– Afzuigsysteem voor uitlaatgassen
– Eigen toiletgroep met wasruimte

Shop en restaurant:
– Volledig ingerichte keuken
– Klimaatbeheerssysteem
– Systeemplafond met inbouwarmaturen
– Toiletgroep
– beveiligde servicebalie (Obri)

Bedrijfswoning 1e verdieping:
– Toegang d.m.v. hardhouten trap en tractielift
– 3 slaapkamers
– Hobbyruimte
– Riante keuken en badkamer
– Klimaatbeheersingssysteem

Bedrijfsruimte 2e verdieping:
– Bereikbaar d.m.v. hardhouten trap en lift
– Vrij in te delen ruimte
– Mogelijkheid tot dakterras

Souterrain:
– Bereikbaar d.m.v. trap en lift
– Installatie voor de wasboxen
– Opslag voor goederen

Bijzonderheden:
– Gevelbeplating met 30 jaar garantie;
– Nieuwe lichtstraat werkplaats (2018);
– Beveiligingssysteem aanwezig (Big Brother);
– Inventaris en voorraden zijn ter overname;
– Wateronthardingsinstallatie.

Bereikbaarheid:
Bedrijventerrein “Tatelaar” is gelegen langs de A12 en via de afrit Zevenaar gemakkelijk te bereiken met eigen vervoer.

Parkeren:
Parkeren op eigen terrein en in de directe omgeving.

Bestemming:
Het geldende bestemmingsplan geeft als bestemming ‘bedrijventerrein’ aan. Gebruik ten behoeve van o.a. bedrijven in cat. 1 en 2, internet-/groothandel, volumineuze detailhandel, leisure (o.a. sport) zijn toegestaan. Meer informatie op aanvraag beschikbaar.

  • 242 m2
  • 987 m2

Kenmerken Nobelstraat 5

Overdracht

StatusVerkocht
PrijsPrijs op aanvraag
AanvaardingIn overleg

Oppervlaktes en inhoud

Soort ObjectBedrijfsruimte
Oppervlakte242 m2
Perceeloppervlakte987 m2
Bedrijfshal vrije hoogte500 cm

Parkeergelegenheid

Geen eigenschappen

Bouw

BouwvormBestaande bouw
Bouwjaar2003
Bouwjaar toelichting

Overig

LocatieBEDRIJVENTERREIN
Aantal lagen1
Onderhoud binnenGoed
Onderhoud buitenGoed

Ligging Nobelstraat 5

Vergelijkbaar bedrijfsaanbod