Ga naar inhoud

Sippenbroek ong

7207 BZ Zutphen

Eggink Maalderink Garantiemakelaars
Neem contact met mij op

Verkocht

€ 245.000,- v.o.n.

  1. Home>
  2. Bedrijfspanden>
  3. Koop Zutphen Sippenbroek ong

DE BOUW IS GEREED , NU DE LAATSTE 2 UNITS NOG BESCHIKBAAR !!

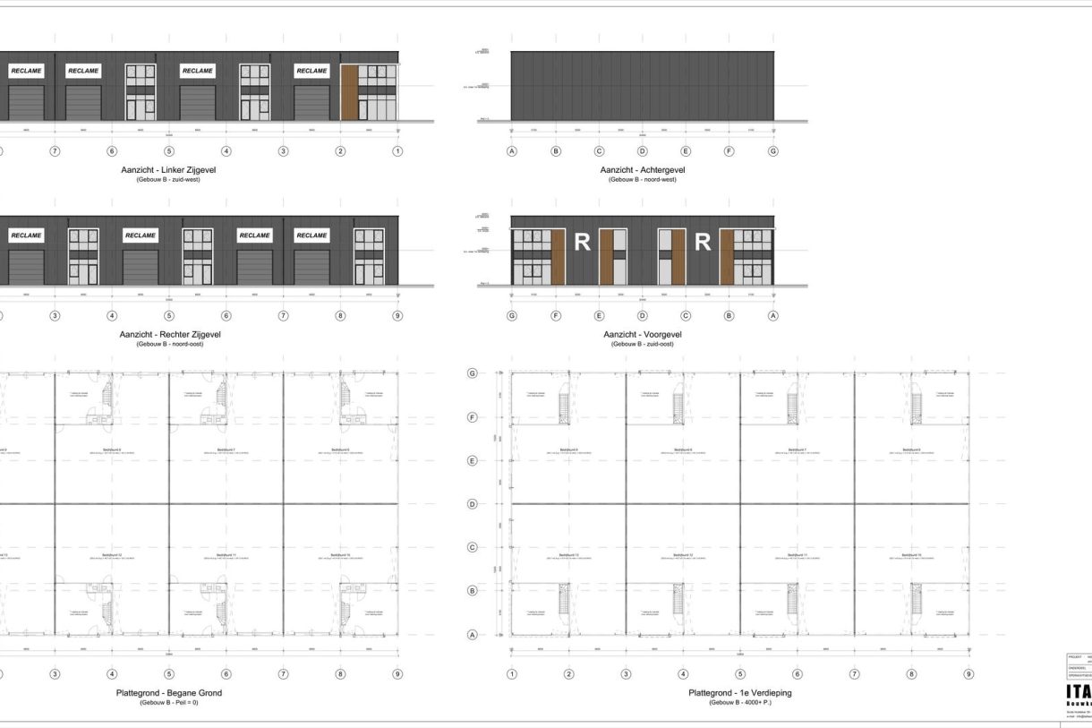
Hoogwaardige bedrijfsunits met veel begane grond oppervlakte! Op bedrijventerrein De Revelhorst te Zutphen worden dertien (13) bedrijfsunits gerealiseerd verdeeld over bedrijfsverzamelcomplex gebouw A (5) en bedrijfsverzamelcomplex gebouw B (8). Gebouw A heeft drie tussenunits en twee representatieve kopunits. Gebouw B heeft vier tussenunits en vier representatieve kopunits.

Alle bedrijfsunits worden casco opgeleverd en zijn voorzien van een groot formaat overheaddeur en een glazen pui aan de voorgevel. Ideale gebouwen voor opslag- of bedrijfsruimte in combinatie met nader in te bouwen kantoorruimte.
Het buitenterrein wordt verzorgd aangelegd , De wegen binnen het plangebied zijn ruim opgezet en hebben een goede ontsluiting op de openbare weg.

De bedrijfsunits hebben elk een beschikbare bruto vloeroppervlakte op de begane grond van minimaal ca. 200 m² en beschikbaar bruto vloeroppervlakte op de eerste verdieping van ca. 32 m². Het grote oppervlakte op de begane grond is in combinatie met de hoogte van ca. 7,5 meter uniek in dit segment. Ideaal voor jouw bedrijf of als belegging.

De volgende units zijn ca. 10,6 meter breed en 19 meter diep: 4 eigen parkeerplaatsen:

NOG BESCHIKBAAR:
Unit 3. Begane grond 201 m² Verdieping 32 m² € 245.000,-
Unit 4. Begane grond 201 m² Verdieping 32 m² € 245.000,-

De vermelde metrages zijn ca. maten en op basis van BVO.
De koopsommen zijn vrij op naam en exclusief BTW, te voldoen in termijnen.

Indeling en voorzieningen:
De bedrijfsgebouwen zullen in casco staat worden opgeleverd, doch voorzien van:
• Separate loopdeur;
• Overheaddeur ca. 4×4 meter
(evt. elektrisch bedienbaar)
• Betonvloer begane grond
• Betonnen verdiepingsvloer ( kanaalplaatvloer)
• Daglichttoetreding middels glazen puien
(gedeeltelijk te openen)
• Vrije hoogte bijna 7,5 meter

Parkeren
er zijn 4 parkeerplaatsen per bedrijfsunit.

Bestemmingsplan
Op dit bedrijventerrein rust het bestemmingsplan Revelhorst – de Stoven 2011, vastgesteld door de gemeente Zutphen.
Milieucategorie tot en met 3.2 toegestaan.

Procedure
Bij aanschaf van een bedrijfsunit gaat u een koop- en aanneemovereenkomst aan. De hoofdkenmerken van deze overeenkomst zijn:
• aanschaf en levering van de grond;
• een aannemingsovereenkomst op grond waarvan de aannemer zich verplicht tot het bouwen van de bedrijfsunit
• u betaalt bij aanschaf de koopsom voor de grond en de evt. reeds vervallen aanneemtermijnen .

Vereniging van eigenaren
Voor de bedrijfsgebouwen zal een Vereniging van Eigenaren (VvE) opricht worden. Iedere eigenaar van een bedrijfsgebouw is van rechtswege lid van de VvE. Tevens zal een huishoudelijk reglement van kracht zijn, waaraan eigenaren, bezoekers en ieder dient zich hieraan te houden. Op deze wijze wordt een veilig en representatief complex, ook in de toekomst gegarandeerd.

  • 241 m2

Kenmerken Sippenbroek ong

Overdracht

StatusVerkocht
Prijs€ 245.000,- v.o.n.
AanvaardingIn overleg

Oppervlaktes en inhoud

Soort ObjectBedrijfsruimte
Oppervlakte241 m2
Vloerbelasting1.000 kg p. m2
Bedrijfshal vrije hoogte700 cm

Parkeergelegenheid

Parkeerplaatsen5

Bouw

BouwvormBestaande bouw
Bouwjaar2024
Bouwjaar toelichting

Overig

Bedrijfshal in units vanaf241 m2
LocatieBEDRIJVENTERREIN
Onderhoud binnenUitstekend
Onderhoud buitenUitstekend

Ligging Sippenbroek ong

Vergelijkbaar bedrijfsaanbod