Ga naar inhoud

Bouwnummer 37

7207 RZ Zutphen

Verkocht

€ 358.000,- Vrij op naam

  1. Home>
  2. Nieuwbouw>
  3. >
  4. Bouwnummer 37

Met trots presenteren wij Wonen op de Enk!
Inmiddels is de verkoop gestart en worden de verkoopgesprekken gevoerd.

Download het inschrijfformulier op wonenopdeenk.nl en schrijf je in voor een nog beschikbare woning en wie weet woon jij begin 2021 in jouw droomhuis.

Ruim en groen wonen in een hof in Zutphen
De locatie in het noorden van Leesten Oost in Zutphen zal worden omgevormd tot een hoogwaardig hof met duurzame woningbouw.

Waar de opzet van Leesten Oost zich kenmerkt door vooral lange straten, wordt het noordelijke deel op een ontspannen, organische wijze ingevuld. De woningen (twee-onder-een-kap en vrijstaand) liggen op de voormalige enk (een oude akker).

De ruime kavels (gemiddeld 335m²) bieden de mogelijkheid zowel in de zon als in de schaduw te zitten en geven een vrij gevoel van wonen. De twee parkeerplaatsen op eigen terrein en de stenen berging zorgen voor nog meer gemak.

Vanzelfsprekend zijn de woningen zeer goed geïsoleerd en voorzien van beproefde, moderne energiesystemen. De woningen worden gasloos verwarmd en voorzien in voldoende warm water.

Kenmerken:
– Lichte woning door de vele ramen;
– Flexibel indeelbare en ruimtelijke plattegrond met veel uitbreidingsopties.
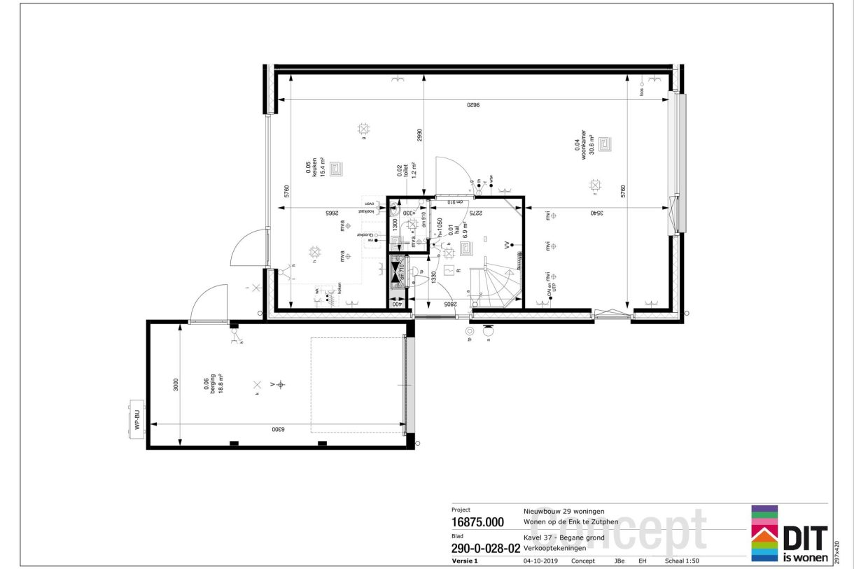
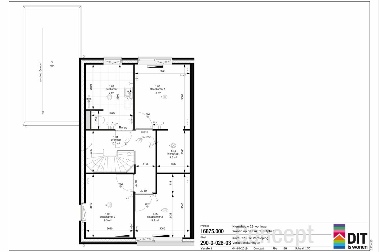
– Drie ruime slaapkamers met inloopkast op de 1e verdieping;
– Luxe afgewerkte badkamer met daglicht, wandcloset, douche met drain, wastafel, radiator en voldoende ruimte voor het plaatsen van een ligbad;
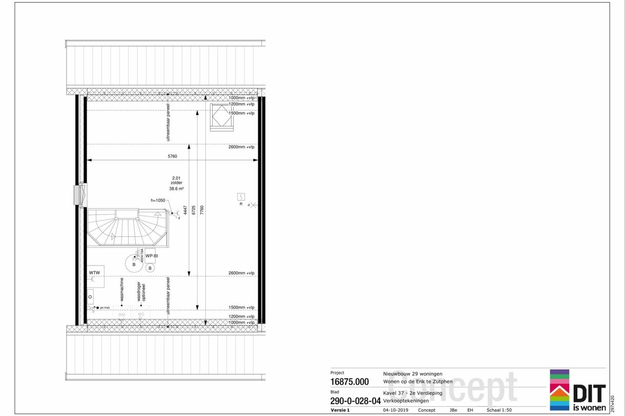
– Vrij indeelbare zolder voor extra kamer(s) en een afgesloten technische ruimte;
– Begane grond voorzien van vloerverwarming en convectoren op de 1e verdieping;
– Gasloze woning, klaar voor de toekomst met een eigen lucht/water warmtepomp, energiezuinig ventilatiesysteem en zonnepanelen;
– Eigen oprit met twee parkeerplaatsen op eigen terrein en stenen berging;

Weldadig wonen aan een hof in een duurzaam, zeer energiezuinig huis, dát is Wonen op de Enk.

Heeft u interesse om hier te gaan wonen? En wil u uw eigen indeling mee ontwerpen?
Schrijf je dan in en ontvang alle informatie per e-mail. Vanzelfsprekend kunt u alle beschikbare informatie ook vinden op de website wonenopdeenk.nl.

  • 150 m2
  • 284 m2
  • 3

Overdracht

StatusVerkocht
Prijs€ 358.000,- Vrij op naam

Oppervlaktes en inhoud

Gebruiksoppervlakte150 m2
Inhoud578 m3

Bouw

SoortEengezinswoning
Dak typeZadeldak
IsolatievormenVolledig geïsoleerd

Indeling

Aantal verdiepingen3
Aantal kamers4
Aantal slaapkamers3

Maandlasten

Ligging

Marktcijfers van Zutphen

Gemiddelde verkoopprijs in Zutphen

Landelijk gemiddelde: € 318.796,-

Gemiddelde vraagprijs in Zutphen

Landelijk gemiddelde: € 336.310,-

Gemiddelde verkooptijd in Zutphen

Landelijk gemiddelde: 22

Gemiddeld aangeboden in Zutphen

Landelijk gemiddelde: 4081

Gemiddeld aantal verkocht in Zutphen

Landelijk gemiddelde: 8726

Gemiddelde prijs/m2 in Zutphen

Landelijk gemiddelde: 2.770