Ga naar inhoud

Te koop: woonhuis Zutphensestraatweg 15 6953 CG Dieren

Beschikbaar

Bezichtiging plannen

€ 985.000,- k.k.

Ruimtelijk wonen in een historisch Rijksmonument
Stap binnen in Villa Acaciahof en beleef een unieke combinatie van historie, luxe en ruimte. Deze statige villa uit 1864, oorspronkelijk gebouwd als herenboerderij, is een Rijksmonument dat door de jaren heen vele functies heeft gehad: van herstellings- en vakantieoord ‘Acaciahof’ tot een woonhuis met een rol tijdens de Tweede Wereldoorlog. Nu wacht deze stijlvolle gerenoveerde villa op een nieuwe eigenaar die waarde hecht aan karakter, comfort en authentieke details. Hier geniet je van het gevoel van vrijstaand wonen, in een rustige en zeer prettige buurt.

Historie en architectuur
Villa Acaciahof is gebouwd in een eclectische stijl en heeft een T-vormige plattegrond. Het schilddak, voorzien van gesmoorde Hollandse pannen en een karakteristieke dakruiter, geeft het huis zijn imposante uitstraling. De entree trekt direct de aandacht: een marmeren vloer, originele ornamenten en een voordeur met gietijzeren roosterpanelen vormen een prachtig geheel.
Boven de voordeur bevindt zich een elegant balkon, rustend op zwaar gedecoreerde consoles en afgewerkt met een sierlijk smeedijzeren hekwerk. De woning beschikt over rijk gedetailleerde elementen: sierlijke dakkapellen, donkergekleurde raamluiken en een houten serre met bovengelegen balkon uit circa 1917. Elk detail ademt stijl en geschiedenis.

Locatie:
Villa Acaciahof ligt op slechts enkele minuten lopen van de rivier de IJssel en het uitkijkpunt aan de Noorderstraat, waar een prachtig panorama over het water wacht. Het dorp Dieren biedt alle voorzieningen die je nodig hebt: supermarkten, basisscholen, sportverenigingen en gezellige horecagelegenheden.
Voor de mobiliteit is alles binnen handbereik: het treinstation en de bushalte liggen op loopafstand, net als de veerdienst naar Olburgen. Met de auto bereik je steden zoals Arnhem, Zutphen en Apeldoorn binnen circa 20 minuten via de A12, A50 en A1. De locatie combineert rust en ruimte met uitstekende bereikbaarheid.

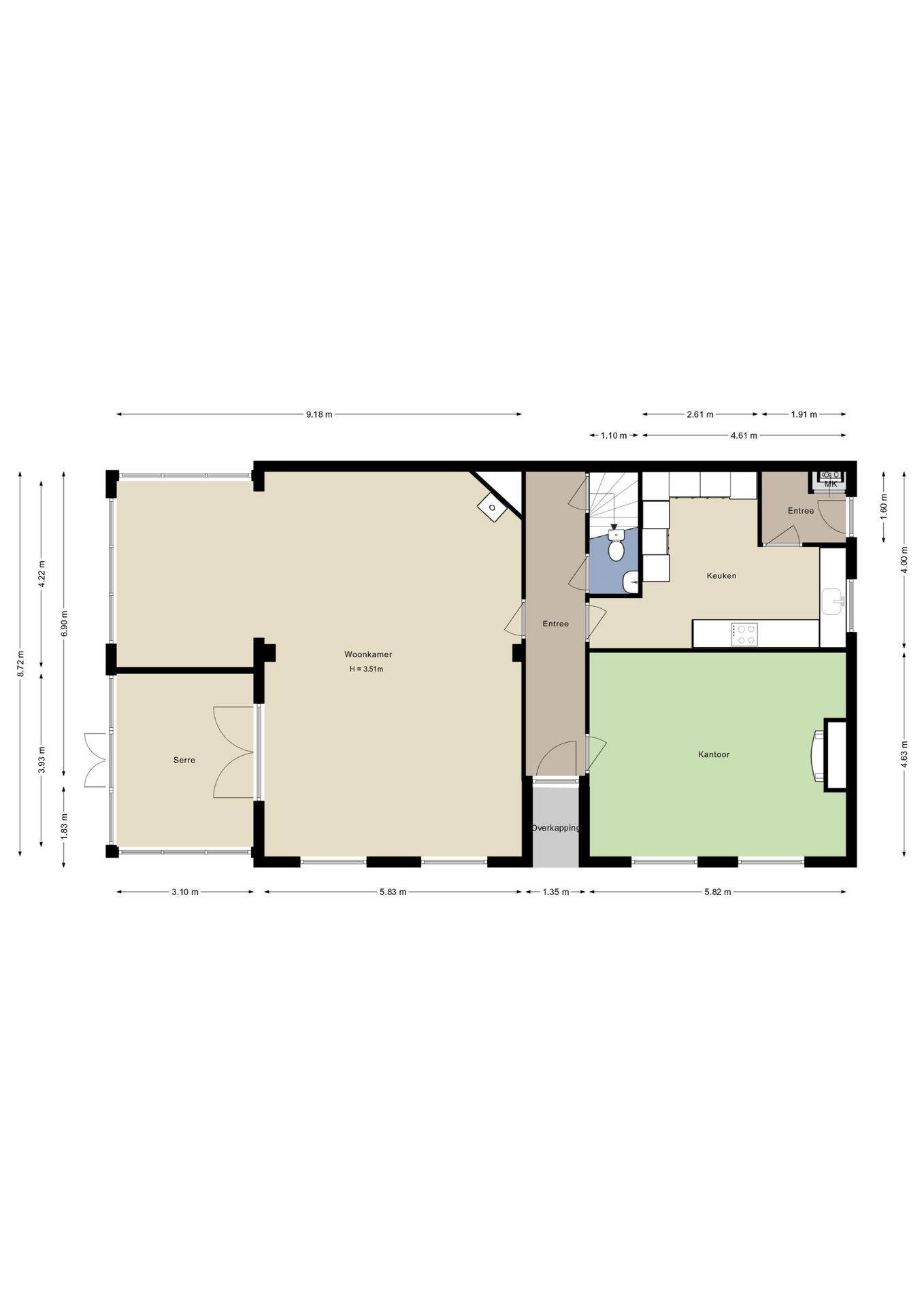
Indeling:
Begane grond:
Bij binnenkomst in de hal ervaar je direct de grandeur van het huis: een marmeren vloer, paneeldeuren, een ornamentenplafond en een subtiel aangebracht lichtspel dat door de grote ramen valt. De hal leidt naar een toilet met fonteintje, elegant en stijlvol uitgevoerd.
De woonkamer, gelegen in het linkerdeel van de villa, is een L-vormige ruimte die ruimte, licht en karakter ademt. Het zitgedeelte aan de voorzijde biedt uitzicht op de voortuin, terwijl het tv-gedeelte aan de linkerzijde uitzicht heeft op de achtertuin. Een hoog efficiënte Efel houtkachel zorgt voor warmte en gezelligheid, vooral op koude winterdagen. De serre uit 1917, met openslaande deuren naar de tuin, is ideaal als werkkamer, bibliotheek of speelruimte.
Aan de andere zijde van de hal bevindt zich een royale kantoorruimte met open haard. De ruimte is licht en sfeervol, met hoogwaardige materialen en verfijnde kleuren. De keuken, een exclusieve matzwarte keukenopstelling (2021), is voorzien van een hoge kastenwand, hoekopstelling en alle benodigde inbouwapparatuur van topkwaliteit. De keuken heeft een eigen entree, ideaal voor praktische toegang tot huis en tuin.

Eerste verdieping:
Op de eerste verdieping bevinden zich drie zeer ruime slaapkamers, waaronder de master bedroom met openslaande deuren naar een zonnig dakterras op het zuidwesten. De kamers zijn voorzien van brede houten vloeren, hoge stijlplafonds en paneeldeuren die de historische charme behouden.
De badkamer is een perfecte mix van stijl en comfort: hardsteen en marmer vormen de basis, gecombineerd met elegant sanitair en moderne accenten zoals zwarte kranen. Een plek waar design en functionaliteit elkaar ontmoeten.

Tweede verdieping:
De tweede verdieping beschikt over een royale overloop, een slaapkamer met sierlijke dakkapel en een berging/wasruimte. De berging biedt ruimte voor een extra slaapkamer of badkamer, terwijl de vliering daarboven oneindige mogelijkheden biedt voor opslag of creatieve invulling.

Kelder:
De villa beschikt onder een deel van het pand over een royale (wijn)kelder, ideaal voor opslag, wijncollecties of als koel- en voorraadruimte.

Exterieur:
De tuin van Villa Acaciahof is net zo indrukwekkend als de woning zelf. De voortuin is symmetrisch aangelegd met twee Japanse sierkersen, grasvelden en een lage beukenhaag. De royale oprit rechts van de villa biedt ruimte voor vier auto’s en is voorzien van een laadpaal voor elektrische voertuigen.
De achtertuin ligt op het zonnige zuidwesten en nodigt uit tot buitenleven: een groot terras, speelgedeelte voor kinderen en een achterterras met pergola creëren een perfecte balans tussen ontspanning en functionaliteit. De garage, bereikbaar vanaf zowel de tuin als de rustige Vingerhoedstraat, biedt extra opslagruimte en privacy.

Bijzonderheden:
• Rijksmonument nr. 519430
• Dakisolatie (2002/2023) en gevelisolatie (m.u.v. voorgevel)
• Houten kozijnen met monumentenglas/HR++ glas
• Verwarming via HR-ketel (2018), open haard en houtkachel
• Vernieuwde elektra (3-fase, 18 groepen)
• Oprit met laadpaal en garage
• Vernieuwde pvc-riolering (2022)
• Tuin met verlichting en sproei-installatie
• Grote kantoor-/werkkamer op de begane grond
• Vier (mogelijk vijf) slaapkamers
• Energielabel n.v.t. (i.v.m. monumentale status)
• Mogelijkheid tot 38% subsidie op onderhoud/verbetering

Wonen in Villa Acaciahof
Villa Acaciahof is meer dan een huis; het is een thuis met historie, luxe en een gevoel van ruimte en vrijheid. Hier ervaar je het ultieme comfort van modern wonen gecombineerd met authentieke details en een sfeervolle ambiance die je nergens anders vindt. Perfect voor wie waarde hecht aan elegantie, rust, ruimte en karakter.

Bewoners ervaring:
Wonen aan de Zutphensestraatweg in Dieren betekent wonen in een buurt met karakter. De straat wordt gekenmerkt door statige, monumentale panden die samen een bijzonder sfeervol geheel vormen. Hier proef je de charme van vroeger, gecombineerd met de levendigheid van nu. De buurtbewoners zorgen samen voor een warme en betrokken sfeer. Regelmatig worden er gezellige burenborrels georganiseerd, vaak met een creatief thema. Zo leer je elkaar kennen op een ongedwongen manier en is er altijd iets om naar uit te kijken.
Wat deze buurt extra bijzonder maakt, is de balans; buren staan klaar om elkaar te helpen wanneer dat nodig is, maar er is tegelijkertijd volop ruimte voor privacy en eigen leefstijl. Je hebt hier echt het beste van twee werelden: betrokkenheid én vrijheid.

Kortom, een buurt die historie ademt, saamhorigheid koestert en waar je tegelijkertijd volop privacy en woongenot ervaart.

Van de kracht van de IJssel blijf je niet verschoond. Op loopafstand ervaar je telkens weer de pracht van deze rivier.

  • 321 m2
  • 715 m2
  • 4

Kenmerken Zutphensestraatweg 15

Overdracht

Vraagprijs€ 985.000,- k.k.
AanvaardingIn overleg

Oppervlaktes en inhoud

Perceel oppervlakte715 m2
Woonoppervlakte321 m2
Inhoud1.325 m3

Bouw

SoortVilla
BouwvormBestaande bouw
Bouwjaar1865
Dak typeSchilddak
IsolatievormenDakisolatie, Muurisolatie, HR glas

Indeling

Aantal verdiepingen5
Aantal kamers6
Aantal slaapkamers4
Aantal badkamers1

Maandlasten

Ligging Zutphensestraatweg 15

Voorzieningen

Centraal gelegen informatie over de buurt

Aantal inwoners

In de gemeente

43.645

Leeftijd

in percentages van totaal

Huishoudsamenstelling

in percentages van totaal

39%

20% NL

33%

20% NL

28%

20% NL

Vergelijkbaar woningaanbod