Ga naar inhoud

Te koop: woonhuis Dr.v.d.Hoevenlaan 3f 7211 AK Eefde

Beschikbaar

Bezichtiging plannen

€ 495.000,- k.k.

Duurzaam, ruim en stijlvol wonen op een prachtige plek in Eefde, op fietsafstand van Zutphen. Deze instapklare hoekwoning heeft een warmtepomp, maar liefst 35 zonnepanelen, HR+++ (triple) glas en een WTW-systeem. Het resultaat is een nul-op-de meter woning, klaar voor een duurzame toekomst. Ook qua indeling is dit een droomhuis: openslaande tuindeuren in de woonkamer, een keuken met inbouwapparatuur, vier slaapkamers, een fraaie badkamer en een mooi aangelegde tuin met eigen achterom.

De fiets kan in de berging staan en voor de auto is er een gezamenlijk parkeerterrein om de hoek. Op een paar minuten lopen stopt bus 81 richting Zutphen en Deventer waar vele winkels, restaurants en uitgaansgelegenheden zijn. Eefde maakt deel uit van de gemeente Lochem en heeft diverse voorzieningen: een supermarkt, een dorpshuis met medisch centrum, een bakker en sportfaciliteiten. Via de Eefdesebrug en de Deventerweg is de binnenstad van Zutphen met de fiets goed bereikbaar.

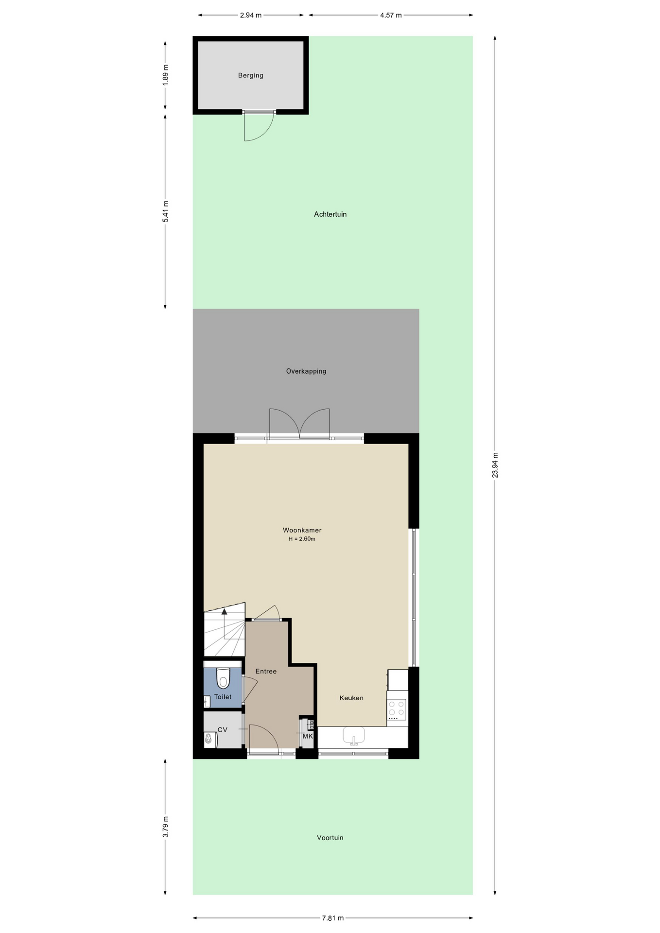
Indeling:

Begane grond:
Wat een fraaie uitstraling heeft deze duurzame hoekwoning, met een fraaie tuin en een eigen achterom. Eerst gaan we naar de voordeur, die toegang geeft tot de ruime hal. Hier zijn de meterkast, de toiletruimte met fonteintje en de trap naar de eerste verdieping. De grijze tegelvloer met vloerverwarming ligt niet alleen in de hal, maar op de hele begane grond.
In de woonkamer word je verrast door de ruimte. Het zitgedeelte heeft een breedte van maar liefst 5.70 meter en het eetgedeelte grenst aan de open keuken. De pui met openslaande deuren en ramen tot vloerhoogte zorgt voor veel lichtinval en mooi uitzicht naar de tuin. Verder heeft deze woning meerdere ramen aan de zuidkant, voor extra lichtinval in huis.
Aan de voorzijde is de open keuken, waar een lichte hoekopstelling met een granieten aanrechtblad staat. De inductie kookplaat, afzuigkap (2022), vaatwasser (2023), combi-oven en koelkast zijn ingebouwd. Nadat je de keuken hebt bekeken, neem de tijd om van het prachtige uitzicht te genieten.

Eerste verdieping:
De slaapkamers op deze verdieping zijn in gebruik als kinderkamer, master bedroom en als werkkamer. Op de vloer ligt PVC en door de grote ramen valt veel licht naar binnen. Hoe je de kamers ook gaat indelen, aan ruimte is geen gebrek!
De moderne badkamer is ingedeeld met een inloopdouche, een badmeubel met twee wastafels en een tweede toilet. Boven de wastafels hangt een grote spiegel met verlichting en de glazen douchedeur maakt de badkamer helemaal af. Een pluspunt is het raam in de voorgevel, waardoor veel licht naar binnen valt.

Tweede verdieping:
Wat een ruimte is er op de tweede verdieping! Als eerste is er een grote, L-vormige overloop die tevens de rol van wasruimte en berging vervult. In de schuinten van het dak is veel bergruimte en de circa 3.50 meter hoge nok maakt het mogelijk om een bergvliering te realiseren.
De slaapkamer op deze verdieping is een heerlijk ruime en lichte kamer door de 2 dakramen. Deze kamer die als kinderkamer gebruikt wordt is in 2024 gerealiseerd. Ook deze kamer heeft bergruimte in de schuinte van het dak en er ligt laminaat op de vloer.

Exterieur:
Openslaande deuren in de woonkamer geven toegang tot het circa 21 m2 grote overdekte terras en de achtertuin, die op het oosten gesitueerd is. De tuin is ingedeeld met een gazon, gevarieerde beplanting, een tweede terras en een houten (fietsen)berging. Deze woning heeft een eigen achterom, afgesloten met een poort, en een strak aangelegde voortuin die weinig onderhoud nodig heeft.

Bijzonderheden:
– Dak-, spouwmuur- en vloerisolatie;
– Kunststof kozijnen met HR+++ glas;
– Verwarming via een warmtepomp (Alpha Innotec) en een WTW-ventilatiesysteem (Brink);
– Warm water via de warmtepomp (verwarming en passieve koeling);
– Vloerverwarming op de begane grond en in de badkamer;
– 35 zonnepanelen van 270 Wp, geplaatst in 2017;
– 0 op de meter woning (afhankelijk van aantal bewoners en persoonlijk energieverbruik)
– Energielabel A++++ vraag je hypotheekadviseur naar de extra financieringsmogelijkheden!

  • 125 m2
  • 185 m2
  • 4

Kenmerken Dr.v.d.Hoevenlaan 3f

Overdracht

Vraagprijs€ 495.000,- k.k.
AanvaardingIn overleg

Oppervlaktes en inhoud

Perceel oppervlakte185 m2
Woonoppervlakte125 m2
Inhoud460 m3

Bouw

SoortEengezinswoning
BouwvormBestaande bouw
Bouwjaar2016
Dak typeZadeldak
IsolatievormenDakisolatie, Muurisolatie, Vloerisolatie, Volledig geïsoleerd
EnergielabelA++++

Indeling

Aantal verdiepingen3
Aantal kamers5
Aantal slaapkamers4
Aantal badkamers1

Maandlasten

Ligging Dr.v.d.Hoevenlaan 3f

Voorzieningen

Centraal gelegen informatie over de buurt

Aantal inwoners

In de gemeente

33.545

Leeftijd

in percentages van totaal

Huishoudsamenstelling

in percentages van totaal

33%

20% NL

33%

20% NL

33%

20% NL

Vergelijkbaar woningaanbod