Ga naar inhoud

Te koop: woonhuis Luunhorststraat 13 7211 EW Eefde

Eggink Maalderink Garantiemakelaars
Neem contact met mij op

Verkocht o.v.

€ 537.500,- k.k.

In een rustige straat, staat deze fraaie twee-onder-een-kapwoning met een oprit, carport én een garage. De achtertuin, met twee terrassen en veel groen, is op het zonnige zuiden waardoor je heerlijk in de zon kunt zitten. Op de eerste verdieping zijn drie slaapkamers en er is een vaste trap naar de tweede verdieping, waar een vierde en zelfs een vijfde kamer mogelijk zijn.

Deze charmante woning ligt in een rustige, verkeersluwe straat waar alleen buurtbewoners en bezoekers komen. De straat vormt een rondgaande weg, waardoor er geen doorgaand verkeer is en kinderen hier veilig kunnen spelen. De gemoedelijke sfeer en het gevoel van privacy maken dit een ideale plek voor gezinnen of iedereen die op zoek is naar een prettige, veilige woonomgeving.

De supermarkt van Eefde ligt om de hoek en met de auto is het iets meer dan een kwartier naar de snelweg A1 en de ligging tussen Deventer en Zutphen zorgt ervoor dat Eefde een geliefde plek is om te wonen.

Indeling:
Begane grond:
Aan de buitenzijde zie je direct dat de architectuur van deze woning is geïnspireerd op de geliefde jaren ’30 stijl. Aan de rechterzijde, onder de carport, is de entree die toegang geeft tot de hal. Hier zijn de meterkast, de trapopgang en de nette toiletruimte met fonteintje.
Wat deze woning aantrekkelijk maakt, is de indeling van de keuken en woonkamer. De keuken is aan de voorzijde, het eerste deel van de woonkamer is perfect voor de eettafel en het zitgedeelte heeft een breedte van maar liefst 5.50 meter. Door de grote ramen aan de zuidkant valt veel licht naar binnen en het uitzicht naar de tuin is fraai.
Achter het halfhoge muurtje is de keuken, waar een lichte U-opstelling met een betonlook aanrechtblad staat. Het spoelgedeelte, met een dubbele spoelbak, is aan de raamkant en alle benodigde apparatuur is ingebouwd: een 5-pits gaskookplaat, afzuigkap, vaatwasser, oven, magnetron en een koelkast.
In de keuken zie je een schuifdeur, die toegang geeft tot de bijkeuken/wasruimte. Onder het blad is ruimte voor de wasapparatuur en het ronde raam zorgt ervoor dat de ruimte heel licht is.
Niet alleen de oprit en de carport, maar ook de garage biedt ruimte om de auto te parkeren. De garage is meer dan 7.10 meter lang, heeft een kantelpoort aan de voorzijde en een deur naar de tuin. Staat de auto binnen, dan is er nog plek voor de fietsen en het tuin-/klusgereedschap.

Eerste verdieping:
Het raam in de zijgevel zorgt voor veel lichtinval op de ruime overloop, waar de vaste trap naar de tweede verdieping is. De lichte laminaatvloer ligt niet alleen hier, maar ook in de slaapkamers. Er zijn twee slaapkamers aan de achterzijde en de derde slaapkamer, met een grote inbouwkast, is aan de voorzijde.
De badkamer is in dezelfde kleurstelling als de toiletruimte, met witte wandtegels en grijze tegels op de vloer. Bij het raam is het ligbad en verder zijn er een inloopdouche, een toilet en een wastafel met spiegelkast.

Tweede verdieping:
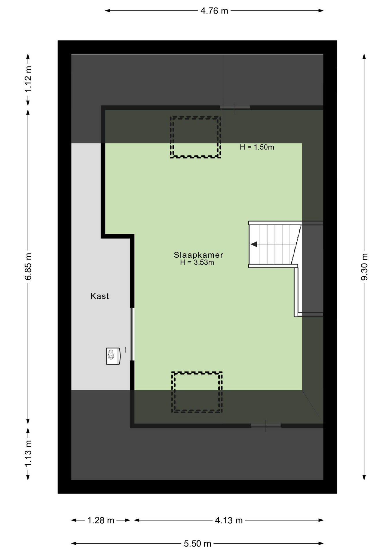
De tweede verdieping is een grote, open ruimte met twee dakramen en een hoge nok. In de schuinten van het dak is veel bergruimte en de positie van de trap, in het midden, biedt de mogelijkheid om twee (slaap)kamers te realiseren.

Tuin:
Vanuit de woonkamer en de garage is de mooi aangelegde tuin op het zuiden te bereiken. Er zijn twee terrassen, waarvan een met een pergola, en er is veel groen in de tuin. Je ziet bomen, struiken en planten in mooie kleuren, wat de tuin tot een gezellige plek maakt. Naast de garage is een eigen achterom en ook de voortuin is heel groen, met twee bomen die ervoor zorgen dat er geen inkijk in de keuken is.

Bijzonderheden:
– Dak-, gevel- en vloerisolatie;
– Houten kozijnen met isolerende beglazing;
– Ruime garage met carport en oprit;
– Drie ruime slaapkamers op de eerste verdieping;
– Vaste trap naar de tweede verdieping (mogelijkheid voor twee slaapkamers);
– Energielabel A

  • 130 m2
  • 286 m2
  • 4

Kenmerken Luunhorststraat 13

Overdracht

Vraagprijs€ 537.500,- k.k.
AanvaardingIn overleg

Oppervlaktes en inhoud

Perceel oppervlakte286 m2
Woonoppervlakte130 m2
Inhoud547 m3

Bouw

SoortEengezinswoning
BouwvormBestaande bouw
Bouwjaar2010
IsolatievormenDakisolatie, Muurisolatie, Vloerisolatie, Dubbelglas
EnergielabelA

Indeling

Aantal verdiepingen3
Aantal kamers5
Aantal slaapkamers4
Aantal badkamers1

Maandlasten

Ligging Luunhorststraat 13

Voorzieningen

Centraal gelegen informatie over de buurt

Aantal inwoners

In de gemeente

33.545

Leeftijd

in percentages van totaal

Huishoudsamenstelling

in percentages van totaal

33%

20% NL

33%

20% NL

33%

20% NL

Vergelijkbaar woningaanbod