Ga naar inhoud

Te koop: woonhuis Braamkamp 451 7206 HX Zutphen

Beschikbaar

Bezichtiging plannen

€ 350.000,- k.k.

Op zoek naar een ruime hoekwoning aan de Braamkamp met een parkeerplaats op eigen terrein. In totaal zijn er vijf slaapkamers, waardoor dit huis perfect is voor een gezin en om vanuit huis te werken. De achtertuin, met een berging en overkapping, is op het zonnige westen en aan de linkerkant is een stuk grond in gebruik van de gemeente. En dat is goed te zien, want ook daar is de tuin aangelegd met mooie beplanting.

De eigenaren hebben de afgelopen jaren geïnvesteerd in verduurzaming met warmtepomp, zonnepanelen en isolatie. De woning heeft energielabel A en een lage maandlast in ernergiekosten.

Het is fijn wonen aan de Braamkamp; een rustige en groene wijk aan de westkant van Zutphen. Voor kinderen is dit de perfecte plek om te wonen, want er is genoeg ruimte om te spelen. Aan de overzijde van de Harenbergweg vind je meerdere basisscholen en winkelcentrum de Brink met een Albert Heijn en diverse (vers)winkels. Na een kwartiertje fietsen sta je in het centrum van Zutphen met winkels, restaurants en uitgaansgelegenheden.

Indeling:
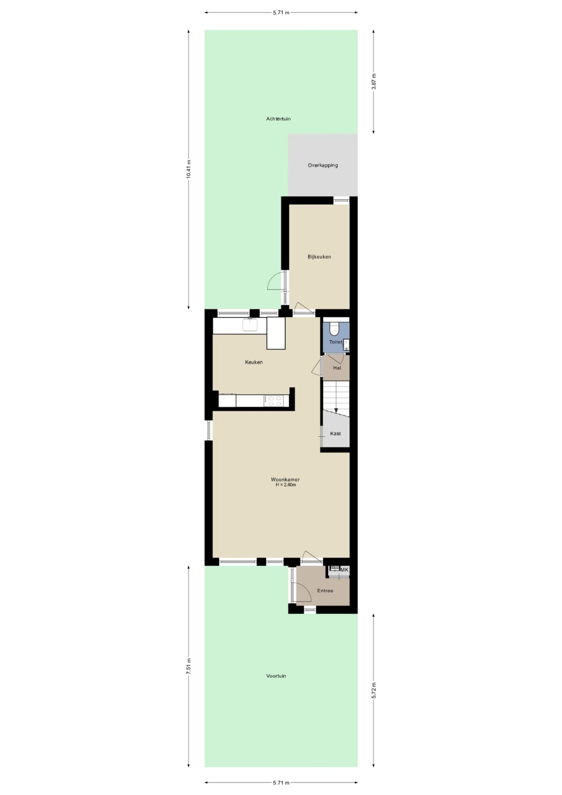
Begane grond:
Vanaf de oprit loop je naar de entree van deze ruime hoekwoning. De hal is een mooie ontvangstruimte met een hoog, schuin dak en lichtinval vanaf twee kanten. Aansluitend is de woonkamer, met dezelfde vloer en een handige bergkast onder de trap.

Achter het muurtje is de keuken, waar aan twee kanten een lichte wandopstelling staat. De keramische kookplaat, afzuigkap, koelkast en combimagnetron zijn ingebouwd. Nu is het een dichte keuken, maar een halfopen keuken of open keuken is ook mogelijk.

Naast de keuken is een portaal met de trap naar de eerste verdieping. Ook de toiletruimte is hier, met een wandcloset en een fonteintje. De muren zijn deels betegeld en op de vloer liggen dezelfde tegels als in het portaal.

In de aanbouw aan de achterzijde is een bijkeuken/berging, die ook als eetkamer of thuiswerkplek gebruikt kan worden. Hier heb je uitzicht naar de tuin.

Eerste verdieping:
Dit is een huis met ruimte, ook op de eerste verdieping. Aan de voorzijde zijn twee slaapkamers, waaronder de master bedroom, en aan de achterzijde is de derde slaapkamer met een berging.

In de badkamer zijn oranje, rode, blauwe en witte tegels gecombineerd tot een vrolijk geheel. Het hoekbad kan tevens als douche worden gebruikt en de rest van de badkamer is ingedeeld met een toilet, een dubbel wastafelmeubel en een grote spiegel.

Tweede verdieping:
Een vaste trap geeft toegang tot de tweede verdieping. Hier zijn een overloop en twee slaapkamers, waarvan een met een wastafel en een vliering. Hiermee heeft deze woning meer dan genoeg ruimte voor een gezin en om vanuit huis te werken.

Exterieur:
Via de bijkeuken/berging is de achtertuin te bereiken, op het zonnige westen. Er is veel groen in de tuin en via het poortje is de steeg te bereiken. De fietsen kunnen dus in de berging of onder de overkapping staan. Ook is er een leuke voortuin, naast de oprit en het pand naar de voordeur. Aan de linkerzijde is een stuk grond in gebruik van de gemeente.

Bijzonderheden:
– Houten kozijnen, merendeels met HR++ glas;
– Tonzon vloerisolatie;
– Hybride warmtepomp met centrale verwarming (Daikin, 2020);
– 14 zonnepanelen van 3000 Wp, geplaatst in 2019;
– Parkeergelegenheid op eigen terrein;
– Vijf slaapkamers, waarvan twee op de bovenste verdieping;
– Aan de linkerzijde is een stuk grond in gebruik van de gemeente;
– Energielabel A

  • 122 m2
  • 177 m2
  • 5

Kenmerken Braamkamp 451

Overdracht

Vraagprijs€ 350.000,- k.k.
AanvaardingIn overleg

Oppervlaktes en inhoud

Perceel oppervlakte177 m2
Woonoppervlakte122 m2
Inhoud461 m3

Bouw

SoortEengezinswoning
BouwvormBestaande bouw
Bouwjaar1979
Dak typeZadeldak
IsolatievormenVolledig geïsoleerd
EnergielabelA

Indeling

Aantal verdiepingen4
Aantal kamers6
Aantal slaapkamers5
Aantal badkamers1

Maandlasten

Ligging Braamkamp 451

Voorzieningen

Centraal gelegen informatie over de buurt

Aantal inwoners

In de gemeente

47.340

Leeftijd

in percentages van totaal

Huishoudsamenstelling

in percentages van totaal

26%

20% NL

34%

20% NL

40%

20% NL

Vergelijkbaar woningaanbod