Ga naar inhoud

Te koop: woonhuis Gerard Doustraat 36 7204 ET Zutphen

Eggink Maalderink Garantiemakelaars
Neem contact met mij op

Verkocht

€ 285.000,- k.k.

Heerlijk wonen met mooi uitzicht! Aan de Gerard Doustraat staat deze leuke woning met drie slaapkamers, een aanbouw op de begane grond en een tuin op het zonnige zuiden. De aanbouw biedt ruimte aan de keuken, bijkeuken en de (fietsen)berging die toegang biedt tot de steeg. De keuken is voorzien van inbouwapparatuur, waardoor je al snel kan beginnen met koken en bakken. En het uitzicht aan de voorzijde? Erg fraai

Het gezellige centrum met winkels, restaurants en andere uitgaansgelegenheden is op fietsafstand. Verder woon je in de nabijheid van scholen, sportvoorzieningen en het gezellige Warnsveld. Aan de Jan Vermeerstraat stopt de bus en in de buurt meerdere speeltuintjes.

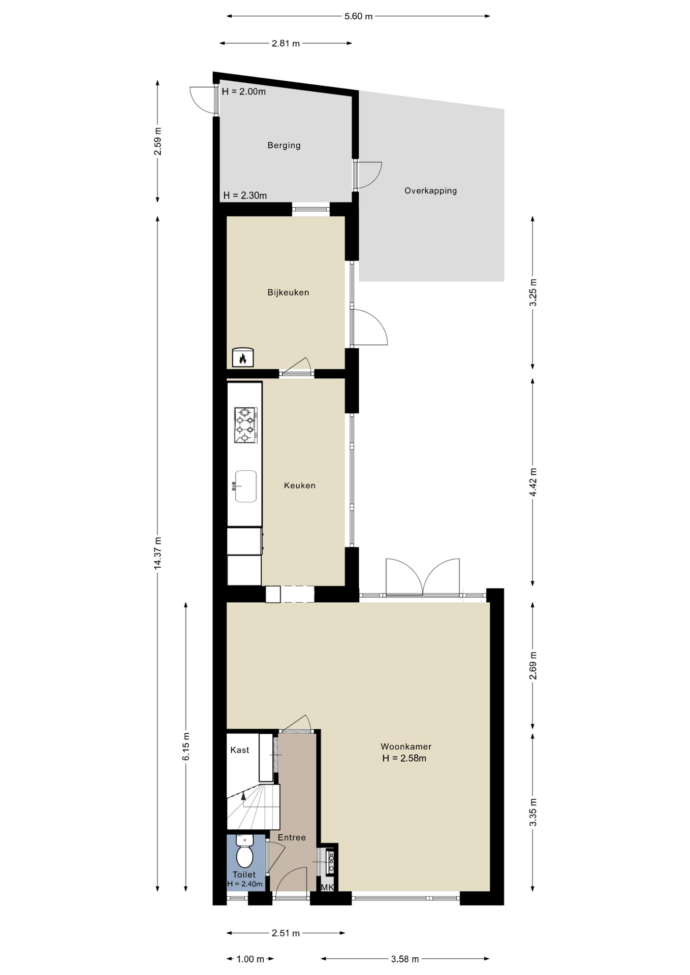
Indeling:
Begane grond:
In de hal, aan de linkerzijde, zijn de trapopgang en een handige bergkast. Ook de nette toiletruimte, met een raam in de voorgevel en geheel betegelde wanden, is vanuit de hal te bereiken. Op de vloer in de hal ligt laminaat, net als in de woonkamer.
Omdat de keuken is verplaatst naar de aanbouw, heeft de woning een ruime woonkamer in een mooie L-vorm. Aan de voorzijde heb je prachtig uitzicht naar het groen, en openslaande deuren aan de achterzijde geven toegang tot de tuin. Zet je de eettafel voor en het zitgedeelte achter? Of toch andersom?
De keuken is een fijne, lichte ruimte met een donkere tegelvloer en een lange, lichte wandopstelling. Alle benodigde apparatuur is ingebouwd: een 5-pits gaskookplaat, afzuigkap, vaatwasser, combi-oven, koelkast en een vriezer. In het verlengde van de keuken zijn de bijkeuken en een van buitenaf bereikbare berging. In de verwarmde bijkeuken hangt de HR-ketel en er ligt nog de originele tegelvloer.

Eerste verdieping:
Deze woning heeft drie slaapkamers op de eerste verdieping, waarvan twee aan de achterzijde. Meerdere inbouwkasten, drie in totaal, bieden ruimte aan kleding en andere spullen. Aan de voorzijde is de derde slaapkamer, met uitzicht naar het groen. De compacte badkamer, met een douche en wastafel, bevindt zich eveneens aan de voorzijde.

Tweede verdieping:
In de nok van de woning is een vliering, met een nokhoogte van circa 1.47 meter.

Exterieur:
De voortuin is keurig aangelegd, met een groenblijvende haag en een kast voor de afvalcontainers. Vanuit de woonkamer en bijkeuken is de achtertuin te bereiken, die dankzij de lange aanbouw smaller is geworden. De ligging op het zuiden is perfect voor de zonliefhebber, en de overkapping biedt een fijne schaduwplek. In de berging is een deur naar de steeg, waardoor je zo met de fiets op pad kunt.

Bijzonderheden:
– Houten kozijnen, merendeels met dubbel glas;
– Verwarming en warm water via een HR-ketel (Remeha, 2008);
– Drie slaapkamers;
– Aanbouw op de begane grond (keuken en badkamer);
– Achtertuin op het zuiden, met een overkapping en achterom;
– Energielabel E.

  • 91 m2
  • 111 m2
  • 3

Kenmerken Gerard Doustraat 36

Overdracht

Vraagprijs€ 285.000,- k.k.
AanvaardingIn overleg

Oppervlaktes en inhoud

Perceel oppervlakte111 m2
Woonoppervlakte91 m2
Inhoud377 m3

Bouw

SoortEengezinswoning
BouwvormBestaande bouw
Bouwjaar1964
Dak typeZadeldak
IsolatievormenGrotendeels dubbelglas
EnergielabelE

Indeling

Aantal verdiepingen3
Aantal kamers4
Aantal slaapkamers3
Aantal badkamers1

Maandlasten

Ligging Gerard Doustraat 36

Voorzieningen

Centraal gelegen informatie over de buurt

Aantal inwoners

In de gemeente

47.340

Leeftijd

in percentages van totaal

Huishoudsamenstelling

in percentages van totaal

35%

20% NL

25%

20% NL

40%

20% NL

Vergelijkbaar woningaanbod