Ga naar inhoud

Te koop: woonhuis Hawkinsstraat 9 7207 RR Zutphen

Eggink Maalderink Garantiemakelaars
Neem contact met mij op

Verkocht

€ 395.000,- k.k.

Soms kom je een huis tegen, boordevol sfeer en met lekker veel ruimte. Deze woning in Leesten Oost heeft drie (mogelijk vier) slaapkamers en een kantoor/werkkamer. Ben je liefhebber van een warm bad en een heerlijke douche? De badkamer heeft een ligbad en een inloopdouche! Verder zie je een mooie keuken, een pvc visgraatvloer op de begane grond en een sfeervolle tuin met twee terrassen.

De woning staat aan een brede straat in Leesten Oost met voldoende parkeergelegenheid voor de deur. Binnen vijf minuten loop je naar een buurtwinkelcentrum met een goede supermarkt; verder zijn er diverse scholen, een gezondheidscentrum, openbaar vervoer, skatebaan, manege en een voetbalvereniging in de nabijheid. Ontdek ook Warnsveld; een plek waar het dorpse karakter nog volop aanwezig is.

Indeling:

Begane grond:
Als je richting de voordeur loopt, dan zie je het zonnige terras in de voortuin. Dit is een fijne plek om buiten te zitten, beschut achter de beukenhaag. De hal is een fraaie ontvangstruimte, die de kwaliteit van deze woning aangeeft. De pvc visgraatvloer ligt op bijna de hele begane grond en de originele woonkamerdeur is vervangen door een fraai, zwart exemplaar met donker rookglas. Rechts in de hal zijn de meterkast en toiletruimte.
Een grote schuifpui verbindt de woonkamer met het grote terras in de achtertuin. De kleuren op de muren, deels uitgevoerd als behang, passen goed bij de visgraatvloer en de trap met trapkast is zwart geschilderd. Aan de voorzijde is de keuken, waar een lichte hoekopstelling en een zwarte, hoge kast staan. De frontjes en greepjes van de hoekopstelling zijn in 2019 vernieuwd en de gaskookplaat, afzuigkap (2021), vaatwasser (2022), combi-oven (2017) en koelkast zijn ingebouwd.

Eerste verdieping:
Bij de stijlvolle, zwarte trap hangt een leuning met ledverlichting. Via deze trap kom je op de overloop, waaraan drie slaapkamers en de badkamer grenzen. Bij de trappen zijn deuren geplaatst, waardoor er geen warmte verloren gaat en op bijna de hele verdieping ligt laminaat op de vloer.
De slaapkamer aan de voorzijde, met Frans balkon, is ingericht als slaapkamer. Aan de achterzijde zijn de master bedroom en een tweede, eveneens ruime kinderkamer. Het raam en grote, witte wandtegels maken de badkamer optisch nog groter. De ruimte is ingedeeld met een ligbad, inloopdouche, wastafelmeubel, tweedeurs kast en een wandcloset.

Tweede verdieping:
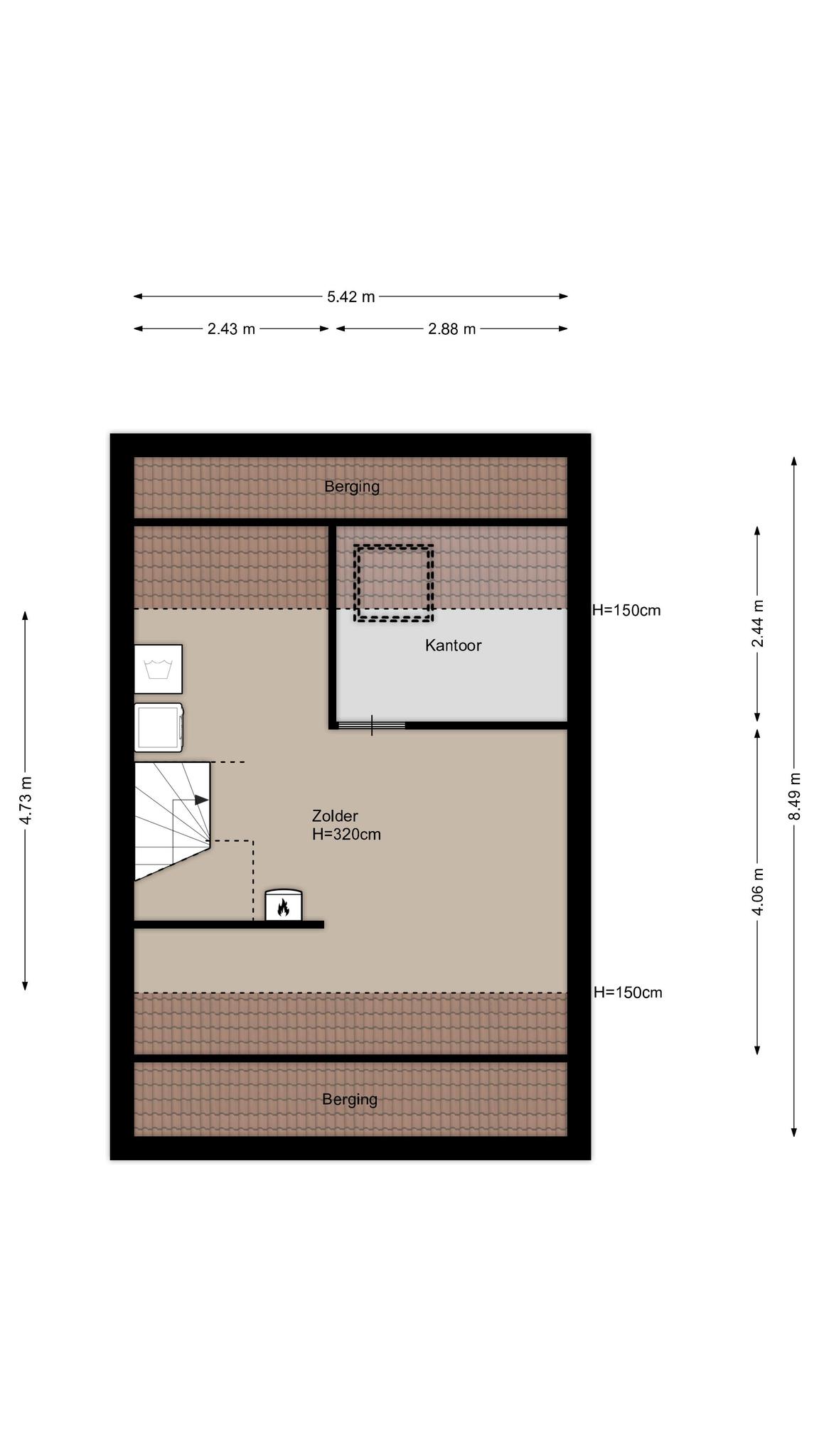
Een vaste trap geeft toegang tot de zeer ruime tweede verdieping, waar een kantoor/werkkamer is gemaakt. Naast de trap is de opstelling van de HR-ketel en de rest van deze verdieping is in gebruik als kleedruimte en berging. Op de vloer ligt laminaat en met het plaatsen van een dakraam of dakkapel aan de voorzijde is er een extra (slaap)kamer te realiseren.

Exterieur:
Bij aankomst heb je de voortuin, op het zuiden, al gezien. De verzorgde achtertuin met twee terrassen biedt zowel zon als schaduw, wat een voordeel is tijdens een warme zomerdag. Verder zie je nette bestrating, kunstgras en houten schuttingen met betonpalen. In de berging is ruimte voor de fietsen en er is een poort naar de steeg.

Bijzonderheden:
– Dak, spouwmuur- en vloerisolatie;
– Houten kozijnen met HR++ glas;
– Buitenschilderwerk is uitgevoerd in mei 2024;
– Verwarming en warm water via een HR-ketel (Intergas Kombi Kompakt Hre 36-30, 2010);
– Mogelijkheid voor zonnepanelen en/of een dakkapel;
– Drie (mogelijk vier) slaapkamers en een kantoor/werkkamer;
– Fraai afgewerkte, instapklare woning met veel sfeer;
– Achtertuin met twee terrassen, gevarieerde beplanting, berging en achterom;
– Energielabel A.

  • 117 m2
  • 135 m2
  • 3

Kenmerken Hawkinsstraat 9

Overdracht

Vraagprijs€ 395.000,- k.k.
AanvaardingIn overleg

Oppervlaktes en inhoud

Perceel oppervlakte135 m2
Woonoppervlakte117 m2
Inhoud439 m3

Bouw

SoortEengezinswoning
BouwvormBestaande bouw
Bouwjaar2010
Dak typeZadeldak
IsolatievormenVolledig geïsoleerd
EnergielabelA

Indeling

Aantal verdiepingen3
Aantal kamers4
Aantal slaapkamers3
Aantal badkamers1

Maandlasten

Ligging Hawkinsstraat 9

Voorzieningen

Centraal gelegen informatie over de buurt

Aantal inwoners

In de gemeente

47.340

Leeftijd

in percentages van totaal

Huishoudsamenstelling

in percentages van totaal

15%

20% NL

28%

20% NL

57%

20% NL

Vergelijkbaar woningaanbod