€ 235.000,- k.k.
Dit prachtige pakhuis aan de NIEUWSTADSKERKSTEEG 11a (ATELIER/WERKPLAATS MET KELDER EN VERHUURDE BOVENWONING) is NU ZONDER NIEUWSTAD 66 TE KOOP .
Beide huizen staan op één kadastraal perceel en zijn al jaren lang door één eigenaar in bezit.
Een monumentaal grijs pakhuis met een hijsbalk, bestaande uit twee delen:
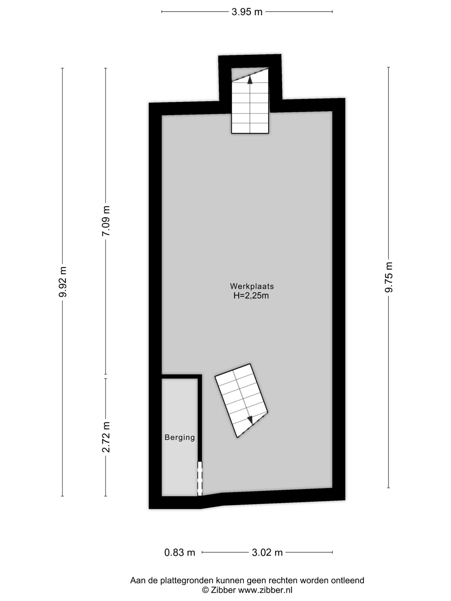
De begane grond met huisnummer 11a is in gebruik als atelier/werkplaats die samen met de gewelven kelder in onverhuurde staat wordt verkocht.
De VERHUURDE bovenwoning kent een eigen entree die leidt naar op de eerste en tweede verdieping. De bestemming ‘Gemengd’ biedt diverse mogelijkheden, van detailhandel tot dienstverlening, kantoren en maatschappelijke voorzieningen op de begane grond en wonen op de verdiepingen.
Iedere inwoner van Zutphen en omgeving kent de Nieuwstadskerk, die ook luistert naar de naam Sint Jan de Doperkerk. De kerk wordt voor het eerst genoemd in 1272 en fungeerde destijds als kerk van de zelfstandige stad ‘Nieuwstad’, dat in 1312 als stadsdeel bij Zutphen werd gevoegd. Recht tegenover deze prachtige kerk staan diverse prachtige panden, waaronder dit grijze pakhuis met een hijsbalk.
De ligging aan de rand van het historische centrum is fantastisch. Het pand staat recht tegenover de kerk en wordt omringd door veelal huizen met historie. Parkeren kan onder andere aan de rand van het Hubertusplein en de bekende winkelstraten zijn, net als het treinstation, maar een paar minuten lopen.
Indeling:
Begane grond:
De begane grond met eigen entree ademt karakter, mede dankzij de boomstammen die de vloer van de eerste verdieping dragen. Je oog valt op de ramen met roedeverdeling en de trap met smeedijzeren balustrade, die de begane grond met het souterrain verbindt. Een van de voordelen is dat er lichtinval aan de voor- én achterzijde is. Voorzieningen als verwarming, water, elektra en afvoer zijn aanwezig.
Kelder:
Een houten trap geeft toegang tot de eeuwenoude gewelfde kelder met een goede stahoogte, elektra. Een oude, gemetselde trap geeft toegang tot de kleine stadstuin aan de achterzijde.
Eerste verdieping:
De bovenwoning bevindt zich op de eerste en tweede verdieping, met een eigen entree op de begane grond. Via een houten trap bereik je een overloop. Vanaf hier is de badkamer te bereiken die is ingedeeld met een douche, toilet en wastafel.
Achter de andere paneeldeur is de woonkamer, die in open verbinding met de keuken staat. De totale lengte is bijna 9 meter en de plafondhoogte van bijna 2.80 meter zorgt, samen met de grote ramen, ervoor dat de leefruimte optisch nog groter is. Aan de voorzijde, bij de schouw, is het zitgedeelte met prachtig uitzicht naar de kerk. In de eetkeuken staat een lichte hoekopstelling met eigen inbouwapparatuur en zie je de trap naar de tweede verdieping.
Tweede verdieping:
Nu biedt deze verdieping ruimte aan één grote slaapkamer, met een hoge nok en prettige lichtinval. Het is mogelijk om, als er geen huurder meer is, om de ruimte opnieuw in te delen met een extra slaap-/werkkamer.
Exterieur:
De stadstuin aan de achterzijde, met oude bestrating, is gesitueerd op het westen. Deze buitenruimte is te bereiken via de multifunctionele ruimte op de begane grond en via een gemetselde trap vanuit de kelder. Als je hier buiten zit, dan heb je alle tijd om de prachtige achtergevel van het pakhuis te bewonderen….
Bijzonderheden:
– Bestemming Gemengd (o.a. detailhandel, dienstverlening, maatschappelijke voorzieningen, kantoren op de begane grond en wonen op de verdieping);
– De begane grond en kelder worden verkocht in onverhuurde staat;
– De bovenwoning wordt verkocht in verhuurde staat;
– Houten kozijnen, deels met dubbel glas;
– Dubbele entree;
– Stadstuin aan de achterzijde, gesitueerd op het westen;
– Verwarming en warm water via een HR-combiketel (Remeha);
– Energielabel E
– Er zal één gedeelte van de tuin worden mee verkocht. Inmetingskosten voor het kadaster is in dit geval voor rekening koper. Gaslevering van Nieuwstad 66 verloopt nu via de gasmeter van Nieuwstadskerksteeg 11a.
- 120 m2
- 56 m2
- 1
Kenmerken Nieuwstadskerksteeg 11a
Overdracht
| Vraagprijs | € 235.000,- k.k. |
|---|---|
| Aanvaarding | In overleg |
Oppervlaktes en inhoud
| Perceel oppervlakte | 56 m2 |
|---|---|
| Woonoppervlakte | 120 m2 |
| Inhoud | 425 m3 |
Bouw
| Soort | Bovenwoning |
|---|---|
| Bouwvorm | Bestaande bouw |
| Bouwjaar | 1915 |
| Isolatievormen | Dakisolatie, Gedeeltelijk dubbelglas |
| Energielabel | E |
Indeling
| Aantal verdiepingen | 3 |
|---|---|
| Aantal kamers | 3 |
| Aantal slaapkamers | 1 |
| Aantal badkamers | 1 |
Maandlasten
Ligging Nieuwstadskerksteeg 11a
Voorzieningen
- Bijbelgetrouw KindCentrum de Bongerd (Geref. Onderw. & Chr. kinderopvang) 236 m Bongerdspad 2 ZUTPHEN
- Saxion Hogeschool 11 km Zutphenseweg 6C DEVENTER
- ROC AVENTUS 348 m Stationsplein 20 ZUTPHEN
- Saxion Hogeschool 11 km Zutphenseweg 6C DEVENTER
- Theologische Universiteit Apeldoorn 18 km Wilhelminapark 4 APELDOORN
Centraal gelegen informatie over de buurt
Aantal inwoners
In de gemeente
47.340
Leeftijd
in percentages van totaal
Huishoudsamenstelling
in percentages van totaal
62%
20% NL
22%
20% NL
16%
20% NL